Schaidt: Modern! Stilvoll! Elegant! Ruhige Ortsrandlage!
Eckdaten
- Art Doppelhaushälfte
-
Lage
Speyerer Straße 120A
76744 Wörth am Rhein - Kaufpreis 548.000,00 €
- Wohnfläche ca. 216 m²
- Grundstück ca. 410 m²
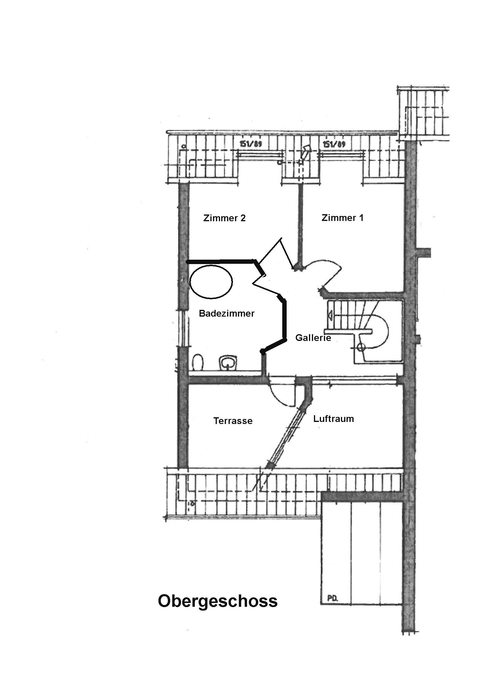
- Zimmer 5
- Baujahr 2001
- Heizungsart Fußbodenheizung
- Einbauküche ja
- Gäste-WC ja
- Stellplatzanzahl 3
- Garagenanzahl 1
- Bodenbelag Fliesen
- Zustand Neuwertig
- Immobilien-ID 6589
- Provision 3,57 % inkl. MwSt.
Immobilie
Kommen Sie nach Schaidt! Lassen Sie sich verzaubern von dieser top modernen Doppelhaushälfte in ruhiger Feldrandlage! Hochwertige edle Materialien und das luftig hohe Raumgefühl im Wohnbereich und im Wintergarten verleihen dem Haus besonderen Stil, Charme und Eleganz. Für Komfort sorgen die Fußbodenheizung, der Kaminofen, die hochwertige Einbauküche mit Kochinsel, die 2 Bäder. Erweiterte Nutzungsmöglichkeiten ergeben sich mit dem Einliegerbereich im Kellergeschoss mit offenem Wohn-Schlafbereich, Terrasse, Küche, Dusche und WC. Ein separater Zugang von außen hinter der Garage ist möglich.
Wir empfehlen Ihnen zunächst eine virtuelle Tour durch das Anwesen mit unseren 360 Grad Ansichten. Aber eine Besichtigung vor Ort ist natürlich durch nichts zu ersetzen. Wir freuen uns schon auf Ihre Anfrage und nehmen uns gern Zeit für Sie.
Lage
Ausstattung
Energieausweisangaben
- Enerigeausweistyp Verbrauchsausweis
- Energiekennwert 113 KWh(m²*a)
- Energieeffizienzklasse D
- Energie mit Warmwasser ja
- Energieausweis erstellt am 25.03.2025
- Energieausweis gültig bis 25.03.2035
- Heizungsart Fußbodenheizung
- Befeuerung / Energieträger Öl
Rechtliches
Die Käuferprovision ist verdient und fällig mit Beurkundung des Kaufvertrages. Wir haben einen provisionspflichtigen Maklervertrag in gleicher Höhe mit dem Verkäufer abgeschlossen.
Herzlichen Dank für Ihre Anfrage.
Wir werden diese so schnell wie möglich bearbeiten.



